立即下载

铰链配件简介

STAFORCE 窗纱一体系统铰链采用高强度不锈钢材料,通过精密加工工艺制造,确保每个铰链都能承受长期高频使用。铰链表面经过防腐蚀处理,具有优异的耐候性和耐久性。

该系列铰链采用双平行臂回转设计,支持0-90度大角度开启,开启顺滑无阻力。结构简洁,安装方便,可快速调试。承重能力强,确保窗扇稳定可靠。

通过严格的盐雾测试和欧洲标准认证,使用寿命长达25000次开合循环,为您的门窗系统提供持久的可靠保障。

窗纱一体系统铰链应用场景

窗纱一体系统 - 铰链

技术参数

  • 1.盐雾测试:SST 7500小时,符合ISO 9227标准CCT 240小时。(欧洲标准无测试CCT,而CCT更加真实模拟实际使用环境)
  • 2.寿命测试:承重80公斤测试2.5万次,符合EN 1191标准。
  • 3.水平方向调节 +/-3mm,高度方向调节 +/-1.5mm。
  • 4.达到抗风压结构设计,抗风压等级达到CE 5级。
  • 5.跌落测试:根据公司内部标准,去掉右边铰链,左边铰链承重80KG的窗,不掉落。
  • 6.启闭力矩 <5NM。

窗纱一体系统铰链优点

  • 1.启闭轻盈顺畅,可调摩擦力。
  • 2.采用自平衡力结构设计,0-90度任意角度自平衡。
  • 3.安装简单便于调节。
  • 4.高承重铰链,开启角度大,通风量大。
  • 5.采用304不锈钢材质长久耐用不生锈。

应用范围要求

✓ 允许应用范围

  • 使用高度范围:800-1600mm
  • 最大宽度:不超过2000mm
  • 窗扇重量:在80kg范围内

✕ 不允许应用范围

  • 超出规定高度、宽度限制
  • 窗扇重量超过80kg
  • 恶劣腐蚀环境未做防护

窗纱一体窗系统安装说明

1

窗纱一体系统安装步骤1

安装步骤1-图1
安装步骤1-图2
安装步骤1-图3
安装步骤1-图4

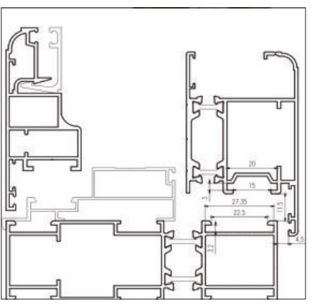
此系统适用于欧标C槽铝合金窗(如图所示)

将图示铝合页滑入窗扇C槽中。将铰链套入C槽内,铝合页滑入铰链转动轴内。

滑入窗扇前,窗扇需破槽口,装配好铝合页,螺丝拧紧。

将窗扇带铰链压入已安装好的背板条的窗框上。按上图示在窗框上下C槽放入背板条,上背板条需去胶布后粘贴到位。

2

窗纱一体系统安装步骤2

安装步骤2-图1
安装步骤2-图2
安装步骤2-图3
安装步骤2-图4

按上图示把窗扇带铰链压入窗框内。

按上图示把窗扇带铰链压入窗框内后;注意导轨C槽口应紧贴型材C槽内拐边,把连接导轨和背板条的螺丝拧紧(上下均如此操作)。

按上图示拧紧铝合页所有螺丝。

安装好上下铰链,调整窗框和窗扇的上下距离。当窗扇需上下调节时利用T25号螺丝刀上下调节上下调节范围± 1.5

3

窗纱一体系统安装步骤3

安装步骤3-图1
安装步骤3-图2
安装步骤3-图3
安装步骤3-图4

当窗扇需调整左右距离时,利用T25号螺丝刀,上下铰链偏心铆钉旋转同一个方向。下垂时,可利用T25号螺丝刀上下铰链偏心铆钉旋转相互反方向即可(左右上下调节范围± 1.5)

校正好窗扇和窗框的距离后,如需调整开启的摩擦力大小,可用T15号螺丝刀拧紧挤压塑料摩擦块即可。

一年清洁一次导轨内的脏污,拆除尾部折弯件排污,后加入适当的润滑脂。

定期维护,10年免费保修。

4

窗纱一体系统安装步骤4

安装步骤4-图1
安装步骤4-图2
安装步骤4-图3
安装步骤4-图4

打钉型和宽槽型可选。

此30324系统适用于欧标槽铝合金窗(如图所示)

打钉型和宽槽型可选。

此30325系统适用于宽槽铝合金窗(如图所示)